


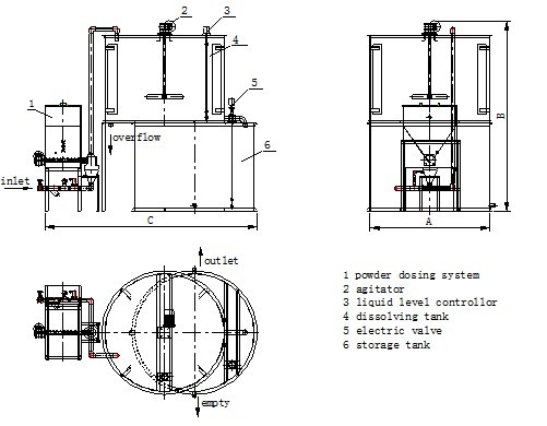
□ Two boxes type batch preparation system give the homogenous and activated polymer solution
□ Batch preparation against short circuit flow
□ The powder pre-wetted in hydration system and accelerated in the water ejector to the mixing tank
□ Hopper is low and manual feed easily
□ Acousto-optic alarm when the dry power level is low
□ Local control box controls the whole preparation process
□ Options: Liquid polymer dosing system
□ Options: Vacuum conveyor
□ Options: On-line diluted system with static mixer
□ Materials of powder dosing system and mixer :stainless steel SS304/


